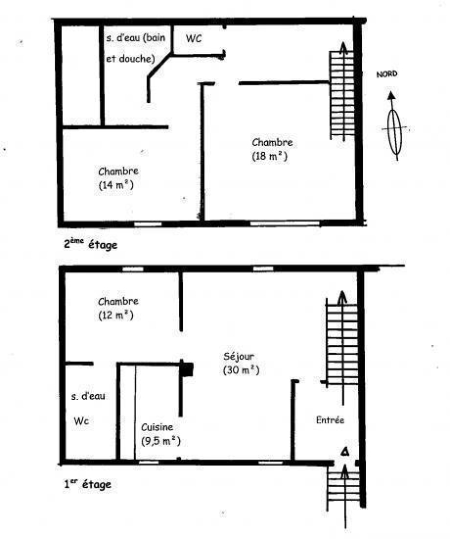
Dans la plaine du Roussillon, entre mer et montagne, venez découvrir la ville de Thuir. Une commune culturelle et dynamique : commerces, restaurants, marché et festivals. A ne pas manquer : les Caves Byrrh et dégustation du célèbre apéritif. Située à quelques kilomètres de la location de vacances, Castelnou, un des plus beaux villages de France. Il a su préserver son apparence médiévale avec ses remparts rythmés par 8 tours et 4 portes. Ici, une multitude d’activités de plein air vous attend : randonnée, cyclisme et visites de vignobles. Ce grand mas de caractère comprend un gîte rural mitoyen à la maison de la propriétaire et 2 autres gîtes indépendants. A proximité, le mas habité par la propriétaire propose également une piscine sécurisée à partager. Au premier étage : Cuisine Grand séjour Chambre 1 : lit double en 160×200 Salle d’eau avec WC Au deuxième étage : Chambre 1 : 2 lits 90×190 Chambre 2 : 2 lits 90×190 Salle de bain : baignoire + douche Wc indépendant Il y a un grand jar
Le logement est situé dans la commune de THUIR
Langue(s) parlée(s)

Infos. complémentaires
Malheureusement, l'accès PMR n'est pas facilité.
Animaux domestiques acceptés.
mas de la ville Traverse du Soler 66300 THUIR
Equipements & services
95m26 Personne(s)
Télévision
Tarification & période
Type de paiement
![]()
| Tarifs | € min. | € max. | Infos. |
|---|---|---|---|
| Semaine | 700,00€ | 980,00€ |