Bienvenue à Thuir, une ville dynamique, connu pour son patrimoine, son terroir et sa douceur de vivre. Vous serez à quelques kilomètres de Perpignan, des plages d’Argelès-sur-Mer ou Saint Cyprien. Découvrez les villages perchés des Aspres avec des panoramas exceptionnels. Visitez les caves Byrrh et la plus grande cuve en chêne au monde. Enfin, ne manquez pas le marché de producteurs les samedis matin.
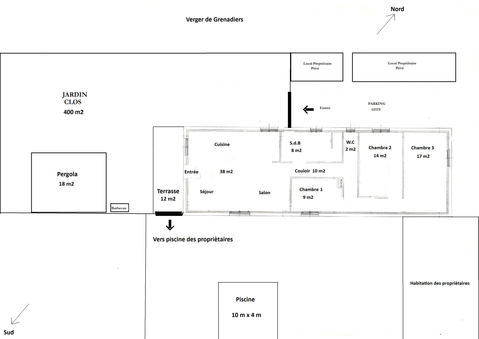
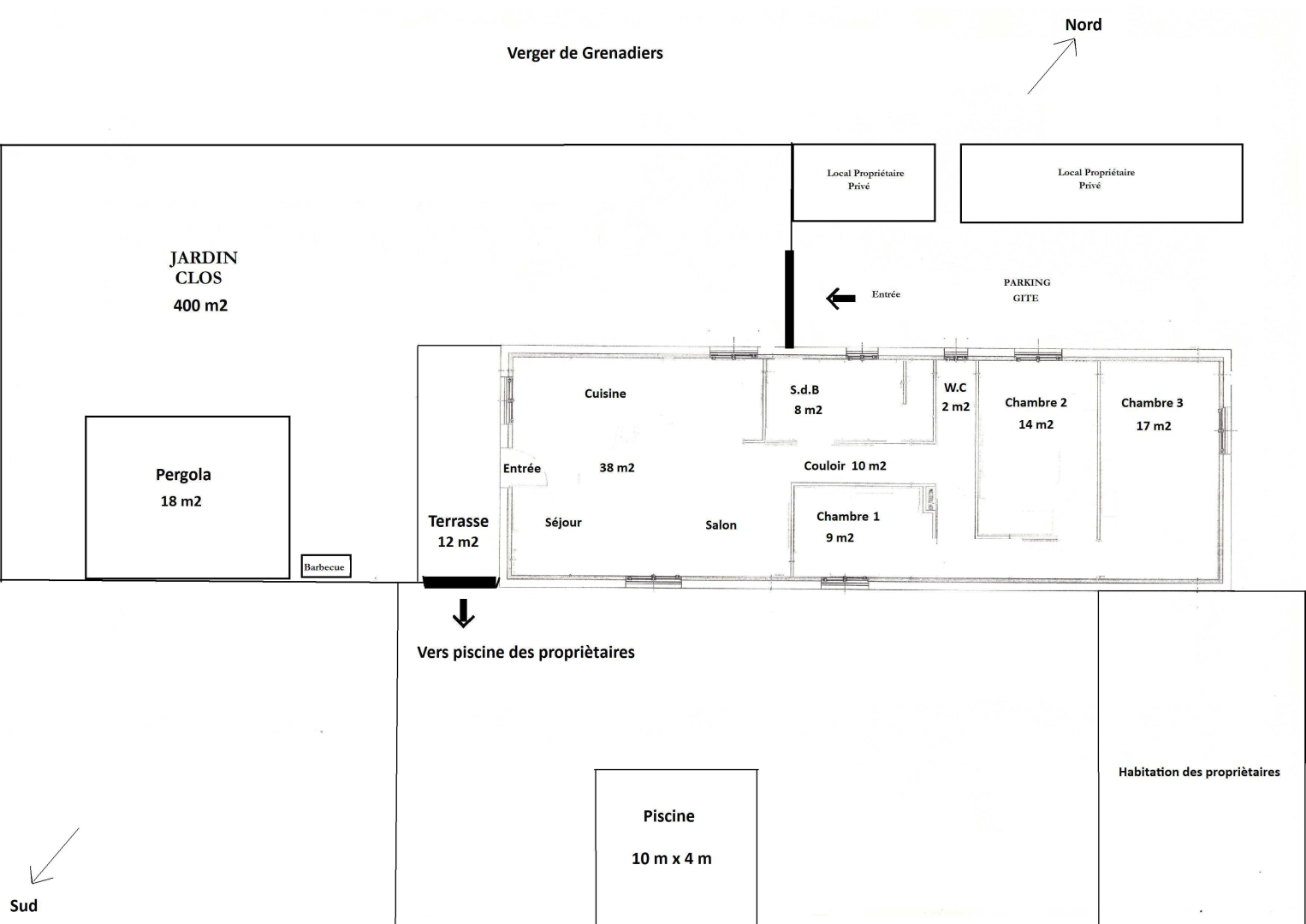
Entourée de vergers, de grenadiers, ce gîte est mitoyen à la résidence principale des propriétaires et se compose :
Rez-de-chaussée (quelques marches d’accès) :
– Grand séjour avec salle à manger et cuisine équipée donnant sur son jardin privatif clos de 400 m² et sa pergola de 18 m².
– Chambre 1 : 1 lit 160, TV
– Chambre 2 : 1 lit 140×190
– Chambre 3 :1 lit 90×190
– Salle d’eau
– WC indépendant
Parking sur place. De juin à septembre, de 10h à 12h et de 16h à 19h, les propriétaires vous permettent d’accéder à leur piscine privée (4 m x 10 m, profondeur 1,5 m).

